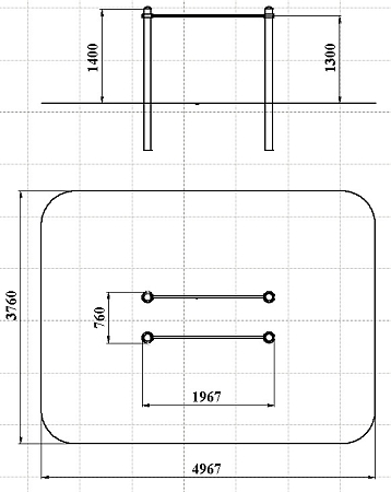
Технические параметры
Длина:
1967 мм
Ширина:
760 мм
Высота:
1400 мм
Возраст:
от 14 до 18 лет
Высота падения:
1300 мм
Площадь зоны безопасности:
20 м2
СО 7.10 Брусья стандартные (Палитра 4 (с22/22,34))
Воркаут состоит из четырех несущих столбов и двух перекладин с зажимными хомутами.



