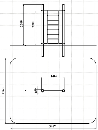
Технические параметры
Длина:
1467 мм
Ширина:
159 мм
Высота:
2600 мм
Возраст:
от 14 до 18 лет
Высота падения:
2200 мм
Площадь зоны безопасности:
20 м2
СО 7.06 Шведская стенка (Палитра 4 (с22/22,34))
Воркаут состоит из двух несущих столбов и шведской стенки с зажимными хомутами.



