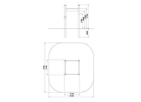
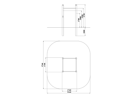
Технические параметры
Длина:
1740 мм
Ширина:
1740 мм
Высота:
2750 мм
Возраст:
от 14 до 18 лет
Высота падения:
2300 мм
Площадь зоны безопасности:
28 м2
ДП 7.321 Турник на бревнах
Предлагается на выбор заказчика два варинта исполнения.
Первый - деревянные столбы и брёвна выполнены из лиственницы, имеют естественную природную форму, тщательно отшлифованы и обладают высочайшей прочностью.
Второй — деревянные столбы и брёвна выполнены из клееной сосновой древесины с последующим оцилинриванием, имеет ровную цилиндрическую поверхность.
Столбы и брёвна покрыты специальной пропиткой, содержащую антисептики и обеспечивающую ультрафиолетовую защиту от солнечного воздействия.
Все используемые материалы закупаются у лучших европейских производителей, что гарантирует высокие стандарты качества.

















