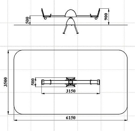
Технические параметры
Длина:
3150 мм
Ширина:
500 мм
Высота:
900 мм
Возраст:
от 3 до 13 лет
Высота падения:
500 мм
Площадь зоны безопасности:
21 м2
ДИО 3.12 Качалка-балансир (Палитра 12 (Художка))
Качалка-балансир состоит из деревянного бруса, который крепится болтовым соединением на металлическом основании, качение производится с помощью подшипников качения. По краям деревянного бруса установлены металличесие каркасы сидения с фанерными спинками с художественным оформлением в футбольной тематике и амортизирующие демпфера из армированной резины. По бокам металлического основания и по бокам бруса (в центре) крепятся декоративные фанерные накладки с художественным оформлением в футбольной тематике.



