Технические параметры
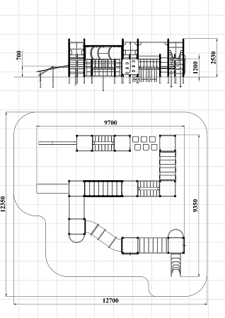
Спортивный комплекс состоит из девяти башен. На первой башне установлены ручки вспомогательные, перекладины, бум бревно. На второй башне уста-новлены ручки вспомогательные, перекладины. На третьей башне установлены ручки вспомогательные, перекладины. На четвертой башне установлены перекладины. На пятой башне установлены ручки вспомогательные, перекладины. На шестой башне установлены ручки вспомогательные, перекладины и скамья гимнастическая. На седьмой башне установлены ручки вспомогательные, перекладины, шест, шведские стенки. На восьмой башне установлены ручки вспомогательные, перекладины, альпинистская стенка, перекладина с канатом, шведские стенки. На девятой башне установлены ручки вспомогательные, перекладины, альпинистская стенка, перекладина с канатом, шведские стенки и лиана. Первая и вторая башни соединены подвесным качающимся бревном со страховочным мостом, вторая и третья комплексом из табурет-шагоходов, третья и четвертая подвесным качающимся мостом, четвертая и пятая подвесным качающимся бревном со страховочным мостом, пятая и шестая вертикальной металлической сеткой и рукоходом, шестая и седьмая перекладинами, седьмая и восьмая пластиковым изогнутым переходом, восьмая и девятая рукоходом.
Спортивный комплекс состоит из девяти башен. На первой башне установлены ручки вспомогательные, перекладины, бум бревно. На второй башне уста-новлены ручки вспомогательные, перекладины. На третьей башне установлены ручки вспомогательные, перекладины. На четвертой башне установлены пе-рекладины. На пятой башне установлены ручки вспомогательные, перекладины. На шестой башне установлены ручки вспомогательные, перекладины и скамья гимнастическая. На седьмой башне установ-лены ручки вспомогательные, перекладины, шест, шведские стенки. На восьмой башне установлены ручки вспомогательные, перекладины, альпинист-ская стенка, перекладина с канатом, шведские стен-ки. На девятой башне установлены ручки вспомога-тельные, перекладины, альпинистская стенка, пере-кладина с канатом, шведские стенки и лиана наклон-ная. Первая и вторая башни соединены подвесным бум бревном со страховочным мостом. Вторая и третья комплексом из табурет-шагоходов, третья и четвертая подвесным мостом, четвертая и пятая подвесным бум бревном со страховочным мостом, пятая и шестая вертикальной металлической сеткой и рукоходом, шестая и седьмая перекладинами, седьмая и восьмая пластиковым переходом, восьмая и девятая рукоходом. Все резьбовые соединения должны быть закрыты разноцветными пластиковыми заглушками.






