Технические параметры
Машина выполнена из фанерных элементов в виде кабины и кузова. Кабина имеет вход с двух сторон, по две ступеньки и по две ручки с каждой стороны, вращающийся руль и сидение. Кузов - открытая площадка со входом в виде альпинистской стенки и горкой. На бортах кузова прикреплены декоративные элементы в виде слесарных инструментов.
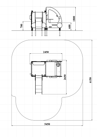
Машина состоит из кабины, кузова, горки ската высотой не менее 700 мм. Кабина имеет вход с двух сторон и имеет по 2 ступеньки и по 2 вспомогательных ручки с каждой стороны, вращающийся руль и сидение. Кузов - открытая площадка имеет один вход и горку скат. На бортах прикреплены декоративные элементы в виде слесарных инструментов. Вся машина должна быть изготовлена из металла и влагостой-кой фанеры.






