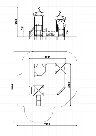
Технические параметры
Песочный дворик – модульная конструкция из игровых и развивающих элементов с шахматной тематикой. Конструкция оборудована двумя башнями беседками, одной аркой, песочницей, ограждением по периметру из деревянного бруса и фанеры с декоративными накладками с художественным оформлением. Башни беседки оборудованы крышами, горкой, лестницей, металлическими перекладинами, фанерным ограждением, детскими счетами с пластиковыми бубликами и сидением. Песочница с четырьмя фанерными накладками и декоративным фанерным ограждением в наружном углу в форме шахматной фигуры ладья.
Песочный дворик – модульная конструкция из иг-ровых и развивающих элементов с шахматной тематикой. Конструкция должна быть оборудована двумя башнями- беседками, одной аркой, песочницей, ограждением по периметру. Башни – беседки оборудованы крышами, горкой, лестницей, ограждением, счетами, сидением из фанеры. Арка с декоративным соединяющим элементом из фане-ры толщиной не менее 24мм. Песочница с четырьмя угловыми фанерными накладками-сидениями по углам и декоративными фанерными огражде-ниями по наружному периметру песочницы. Ограждение по периметру выполнено из фанеры толщиной не менее 24 мм.






