Назад в каталог
Помощь в доставке транспортной компанией
Оперативная отгрузка товара
ДИК 9.122-(М1-1).DWG
ДИК 9.122 с-15.zip
ДИК 9.122 с-16.zip
ДИК 9.122 с-22,19,20.zip
ДИК 9.122 с-22,34,20.zip
Все файлы
ДИК 9.122-ДЕРЕВО Детский игровой комплекс Н=1200 мм
ДИК 9.122-Д (Палитра 1)
Описание
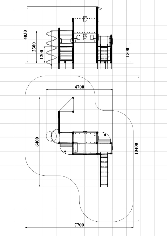
Детский игровой комплекс состоит из трех разновысоких башен. На первой башне установлена лестница, горка, фанерное ограждение с декоративными накладками и ручки вспомогательные. На второй сдвоенной башне установлены декоративные фанерные флажки, фанерные ограждения с декоративными накладками и крыша. На третьей башне установлены фанерное ограждение с декоративными накладками, шест спираль, лестница и ручки вспомогательные. К третьей башне присоединен гимнастический комплекс, состоящий из сетки полипропиленовой и двух шведских стенок.
Читать далее
Характеристики
Длина:
6400
Ширина:
4700
Высота:
4030
Возраст:
от 7 до 13 лет
Высота падения:
2300
Площадь зоны безопасности:
80
Комплектация изделий
Смотреть комплектацию
Комплектация изделия
| Наименование комплектующих | шт. | Входящие материалы |
|---|---|---|
| Горка | 1шт. | Высота 1200 мм. Выполнена из фанеры марки ФСФ толщиной 21 мм, металлического каркаса и ската из нержавеющей стали. |
| Лестница | 2шт. | Выполнена из металла окрашенного порошковой краской и фанеры марки ФСФ толщиной 21 мм |
| Крыша | 1шт. | Выполнена из фанеры марки ФСФ толщиной 21 мм. |
| Ограждение Кремль 1800х635 | 2шт. | Выполнено из фанеры марки ФСФ толщиной 21 мм. |
| Ограждение Кремль 850х635 мм | 3шт. | Выполнена из фанеры марки ФСФ толщиной 18 мм. |
| Перекладина | 21шт. | Выполнена из металла окрашенного порошковой краской. |
| Ручка вспомогательная | 6шт. | Выполнена из металла, покрытого слоем резины. |
| Шест-спираль | 1шт. | Выполнена из металла окрашенного порошковой краской. |
| Сидение 250х700 мм | 2шт. | Выполнена из фанеры марки ФСФ толщиной 21 мм. |
| Сетка | 1шт. | Выполнена из полипропиленового армированного каната. |
| Площадка | 6шт. | Выполнена из ламинированной противоскользящей влагостойкой фанеры толщиной 18 мм. |
| Столб | 16шт. | Выполнен из клееного деревянного бруса, сечением 100х100 мм. |
Файлы для загрузки
Нашли ошибку в описании? Отправьте
нам уведомление — мы проверим ваше обращение и внесём изменения