Производство и продажа оборудования для детских площадок

Каталог товаров

Назад в каталог

ДИК 9.11-ДЕРЕВО Детский игровой комплекс Н=1200 мм

ДИК 9.11-Д (Палитра 1)
Уточнить цену
img
Помощь в доставке транспортной компанией
img
Оперативная отгрузка товара
Описание
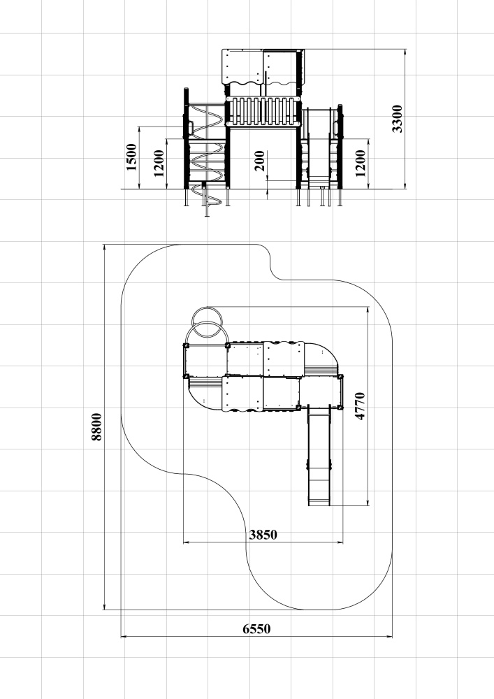
Детский игровой комплекс состоит из трех разновысоких башен. На первой башне установлена лестница, горка, фанерное ограждение и ручки вспомогательные. На второй сдвоенной башне, установлены фанерные ограждения и крыша. На третьей башне установлены ограждение, шест спираль, лестница и ручки вспомогательные.
Читать далее
Характеристики
Длина: 4770
Ширина: 3850
Высота: 3300
Возраст: от 7 до 13 лет
Высота падения: 1500
Площадь зоны безопасности: 50
Комплектация изделий
Смотреть комплектацию
Наименование комплектующих шт. Входящие материалы
Горка 1шт. Высота 1200 мм. Выполнена из фанеры марки ФСФ толщиной 21 мм, металлического каркаса и ската из нержавеющей стали.
Лестница 2шт. Выполнена из металла окрашенного порошковой краской и фанеры марки ФСФ толщиной 21 мм
Крыша 1шт. Выполнена из металла окрашенного порошковой краской, фанеры марки ФСФ толщиной 21 мм и 12 мм.
Ограждение из балясин. 2шт. Выполнено из фанеры марки ФСФ толщиной 21 мм.
Ограждение 850х600 мм 4шт. Выполнена из фанеры марки ФСФ толщиной 18 мм.
Перекладина 3шт. Выполнена из металла окрашенного порошковой краской.
Ручка вспомогательная 4шт. Выполнена из металла, покрытого слоем резины.
Шест-спираль 1шт. Выполнена из металла окрашенного порошковой краской.
Сидение 250х700 мм 2шт. Выполнена из фанеры марки ФСФ толщиной 21 мм.
Площадка 6шт. Выполнена из ламинированной противоскользящей влагостойкой фанеры толщиной 18 мм.
Столб 12шт. Выполнен из клееного деревянного бруса, сечением 100х100 мм.
Нашли ошибку в описании? Отправьте нам уведомление  — мы проверим ваше обращение и внесём изменения
Поможем с выбором
Если у вас есть вопросы по товару — оставьте заявку. Мы перезвоним вам в рабочее время и поможем вам с выбором.