Назад в каталог
Помощь в доставке транспортной компанией
Оперативная отгрузка товара
ДИК 9.112-(М1-1).DWG
ДИК 9.112-11,32.rar
ДИК 9.112-8,22,35.rar
ДИК 9.112-с26,8,21.rar
ДИК 9.112-с26,8,32.rar
ДИК 9.112-с26,11,13.rar
Все файлы
ДИК 9.112-ДПК Детский игровой комплекс Н=1200 мм
ДИК 9.112-ДПК (Палитра 5)
Описание
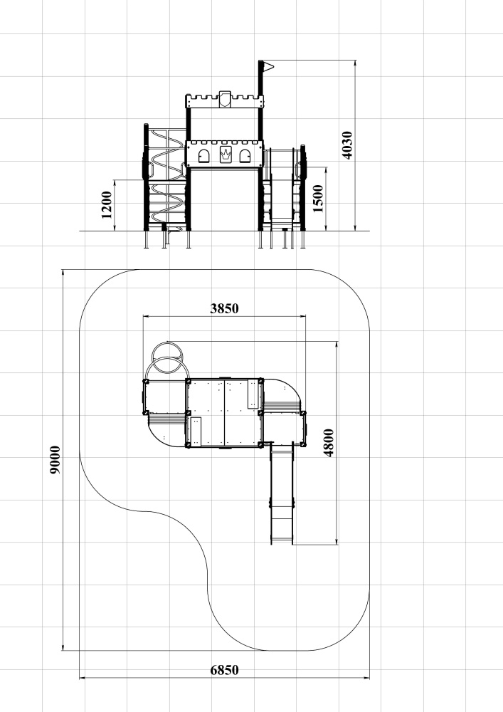
Детский игровой комплекс состоит из трех разновысоких башен. На первой башне установлена лестница, горка, фанерное ограждение и ручки вспомогательные. На второй сдвоенной башне, установлены ограждения фанерные и крыша. На третьей башне установлены ограждение, переклади-ны, шест спираль, лестница и ручки вспомогательные.
Читать далее
Характеристики
Длина:
4800
Ширина:
3850
Высота:
4030
Возраст:
от 7 до 13 лет
Высота падения:
1500
Площадь зоны безопасности:
61
Комплектация изделий
Смотреть комплектацию
Комплектация изделия
| Наименование комплектующих | шт. | Входящие материалы |
|---|---|---|
| Горка | 1шт. | Высота 1200 мм. Выполнена из фанеры марки ФСФ толщиной 21 мм, металлического каркаса и ската из нержавеющей стали. |
| Лестница | 2шт. | Выполнена из металла окрашенного порошковой краской и фанеры марки ФСФ толщиной 21 мм |
| Крыша | 1шт. | Выполнена из фанеры марки ФСФ толщиной 21 мм. |
| Ограждение Кремль 1800х635 мм | 2шт. | Выполнено из фанеры марки ФСФ толщиной 21 мм. |
| Ограждение Кремль 850х635 мм | 3шт. | Выполнена из фанеры марки ФСФ толщиной 18 мм. |
| Перекладина | 3шт. | Выполнена из металла окрашенного порошковой краской. |
| Ручка вспомогательная | 6шт. | Выполнена из металла, покрытого слоем резины. |
| Шест-спираль | 1шт. | Выполнена из металла окрашенного порошковой краской. |
| Сидение 250х700 мм | 2шт. | Выполнена из фанеры марки ФСФ толщиной 21 мм. |
| Площадка | 6шт. | Выполнена из ламинированной противоскользящей влагостойкой фанеры толщиной 18 мм. |
| Столб | 12шт. | Выполнен из древесно-полимерного композита (ДПК) сечением 100х100 мм. |
Файлы для загрузки
Нашли ошибку в описании? Отправьте
нам уведомление — мы проверим ваше обращение и внесём изменения