Производство и продажа оборудования для детских площадок

Каталог товаров

Назад в каталог

ДИК 3.168 Детский игровой комплекс Н=1200,1500 мм граффити

ДИК 3.168 (Палитра 11)
Уточнить цену
img
Помощь в доставке транспортной компанией
img
Оперативная отгрузка товара
Описание
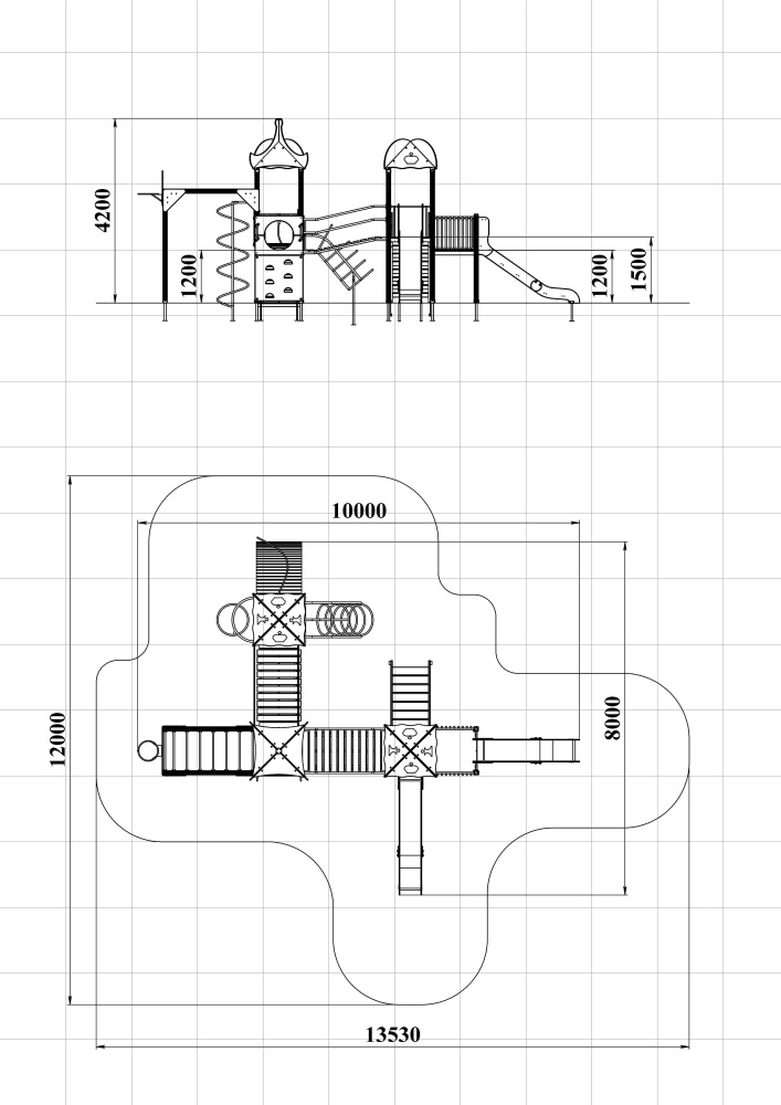
Детский игровой комплекс состоит из трёх башен с металлическими крышами, имеет художественное оформление в стиле граффити. На первой башне с полубашней установлены лестница, две горки, ограждения металлические и соединяется со второй башней разновысоким мостом с металлическими перилами. На второй башне установлены ограждение с круглым вырезом, альпинистская стенка, ручки вспомогательные, шведская стенка, внешний гимнастический комплекс с баскетбольным щитом и кольцом. Вторая башня соединяется с третьей радиусным мостом с фанерными перилами. На третьей башне установлена спираль наклонная, шест-спираль, ручки вспомогательные и трап барабан с перекладиной и канатом.
Читать далее
Характеристики
Длина: 10000
Ширина: 8000
Высота: 4200
Возраст: от 7 до 13 лет
Высота падения: 2100
Площадь зоны безопасности: 156
Комплектация изделий
Смотреть комплектацию
Наименование комплектующих шт. Входящие материалы
Горка 2шт. Высота 1200 мм и 1500 мм. Выполнена из фанеры марки ФСФ толщиной 21 мм, металлического каркаса и ската из нержавеющей стали.
Крыша1 1шт. Выполнена из фанеры марки ФСФ толщиной 21 мм и 12 мм.
Крыша2 2шт. Выполнена из фанеры марки ФСФ толщиной 21 мм и 12 мм.
Лестница 1шт. Высотой 1500 мм, Выполнена из фанеры ламинированной противоскользящаей, толщиной 18 мм, бруса сечением 40х90 мм.
Мост радиусный 1шт. Выполнен из металла окрашенного порошковой краской и деревянного бруса сечением 40х135 мм.
Ограждение моста радиусного 2шт. Выполнена из фанеры марки ФСФ толщиной 21 мм.
Ограждение металлическое 900х700 мм 2шт. Выполнен из металла окрашенного порошковой краской.
Альпинистская стенка 1шт. Выполнена из фанеры марки ФСФ толщиной 18 мм
Ограждение моста наклонного. 4шт. Выполнен из металла окрашенного порошковой краской.
Щит баскетбольный с кольцом 1шт. Выполнен из металла окрашенного порошковой краской и фанеры марки ФСФ толщиной 18 мм.
Трап-барабан с перекладиной и канатом 1шт. Выполнен из бруса сечением 40х90 мм, металла окрашенного порошковой краской и полипропиленового каната.
Перекладина 18шт. Выполнена из металла окрашенного порошковой краской.
Спираль наклонная 1шт. Выполнена из металла окрашенного порошковой краской.
Ограждение с полукруглым вырезом 1100х450 мм 4шт. Выполнена из фанеры марки ФСФ толщиной 4 мм
Ручка 8шт. Выполнена из металла, покрытого слоем резины.
Шест-спираль 1шт. Выполнена из металла окрашенного порошковой краской.
Мост наклонный 1шт. Выполнен из металла окрашенного порошковой краской и деревянного бруса сечением 40х135 мм.
Площадка 4шт. Выполнена из ламинированной противоскользящей влагостойкой фанеры толщиной 18 мм.
Столб 21шт. Выполнен из клееного деревянного бруса, сечением 100х100 мм.
Файлы для загрузки
Нашли ошибку в описании? Отправьте нам уведомление  — мы проверим ваше обращение и внесём изменения
Поможем с выбором
Если у вас есть вопросы по товару — оставьте заявку. Мы перезвоним вам в рабочее время и поможем вам с выбором.