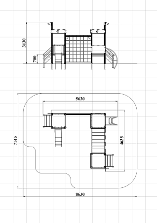
Технические параметры
Длина:
5630 мм
Ширина:
4635 мм
Высота:
3130 мм
Возраст:
от 3 до 6 лет
Высота падения:
700 мм
Площадь зоны безопасности:
61 м2
ДИК 3.12-ДЕРЕВО Детский игровой комплекс Н=700 мм (Палитра 1 (-15))
Детский игровой комплекс состоит из трёх башен. На первой башне установлена лестница, декоративные фанерные флажки, шведская стенка и фанерное ограждение с художественной оформленной поверхностью в морской тематике. На второй башне установлена лиана и фанерное ограждение с художественной оформленной поверхностью в морской тематике. На третьей башне установлена горка, лестница, декоративные фанерные флажки, шведская стенка и фанерное ограждение с художественной оформленной поверхностью в морской тематике. Третья и вторая башни соединены сеткой полипропиленовой, вторая и первая соединены подвесным мостом.






