Технические параметры
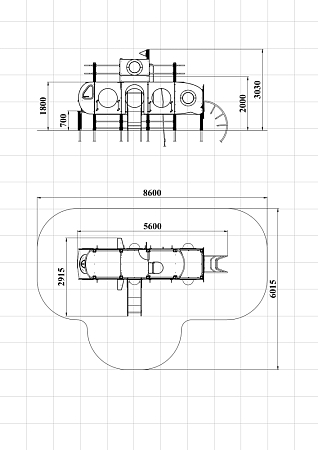
Детский игровой комплекс скомпонован в форме подводной лодки, состоит из четырех спаренных башен и одной радиусной полубашни, являющейся передом подводной лодки. Центральная башня - двухъярусная, имитирует рубку подводной лодки. Ограждениями первого яруса являются фанерные листы с круглыми вырезами-лазами. На задней части первого яруса два ограждения с пластиковыми иллюминаторами. На первом ярусе центральной башни расположена горка, напротив неё - ограждение с лазом и перекладина с канатом. Входами на первый ярус со стороны улицы являются шведские стенки, расположенные под боковыми ограждениями с лазами. К задней части подводной лодки крепится лиана наклонная. Переход с первого яруса на второй обеспечен лестницей металлической, крепящейся снизу к полу первого яруса, проходящей сквозь люк-вырез пола второго яруса, сверху крепится к столбам башни. Второй ярус огражден фанерными ограждениями с пластиковыми иллюминаторами и дуговыми металлическими перекладинами.






