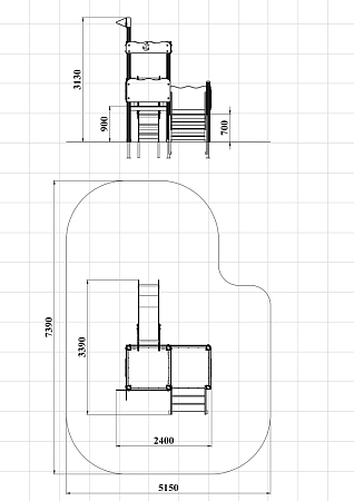
Технические параметры
Длина:
3390 мм
Ширина:
2400 мм
Высота:
3130 мм
Возраст:
от 3 до 6 лет
Высота падения:
900 мм
Площадь зоны безопасности:
39 м2
ДИК 2.136-ДЕРЕВО Детский игровой комплекс Н=900 мм (Палитра 1 (-15))
Детский игровой комплекс состоит из двух разновысоких башен. На одной из башен установлена фанерная крыша, декоративные фанерные флажки, горка, вспомогательные ручки, фанерные ограждения с художественно оформленной поверхностью в морской тематике, на другой башне установлена лестница и фанерные ограждения с художественно оформленной поверхностью в морской тематике.






